MONOCHROME DUPLEX
דירת דופלקס מודרנית במודיעין
הנכס:
דירת דופלקס מקבלן במודיעין, שתוכננה ועוצבה כבר משלב הרכישה כשהיתה עדין בתכנון "על הנייר" בשלבים מאוחרים יחסית.
עבור:
זוג צעיר עם 3 ילדים
התכנון:
ללקוחות היה חשוב ליצור תחושה של מרחב ותנועה ליניארית ופתוחה, אך עדיו עם תחושה של "סדר" פונקציונאלי.
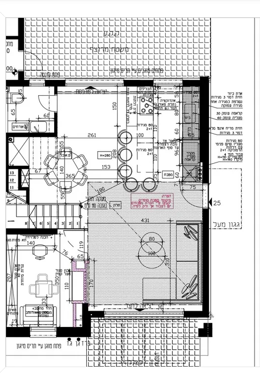
מהסיבה הזו, החלל הציבורי כולו מתוכנן כחלל פתוח, מהחצר הקדמית ועד החצר האחורית. בנוסף, בחרנו לבטל את חדר השינה הנוסף בקומה זו, ולחצוץ אותו עם קיר טלוויזיה הכולל קמין גז יוקרתי, ומאחוריו חלל העבודה והמשחקים, שחלקו נשאר פתוח לחלל הסלון.
חלק מהחלל הציבורי כלל גובה כפול (מעל הסלון), שבחרנו לסגור לאחר קבלת המפתח באופן פרטי כחלל נוסף שמשמש היום כסוויטת הורים
עם ח.רחצה צמוד.
התהליך המלא ערך כ- שנה וחצי, שלבים יחסית מאוחרים כשכבר לא היה ניתן לבצע יותר מידי שינויים בתשתיות.
לכן, תיכננו לבצע שינויים נוספים לאחר קבלת המפתח - סוג של "מיני שיפוץ", במטרה להתאים את הבית לצרכים והחלומות של בני המשפחה,
אך עם נסיון להיצמד כמה שניתן לתשתיות הקיימות.
הקונספט: הלקוחות הינם בעלי טעם מאוד עשיר, והיה להם חשוב לעצב בית עם מראה מודרני ואלגנטי.
הם לא רצו לוותר על חמימות ונגיעות של צבע, ורצו להשיג את זה מבלי לאבד את המראה היוקרתי.
בחרנו להשתמש בפלטה של גוונים מונוכרומטים של שחורים-אפורים-לבנים, עם שילוב של גוון אחד נוסף, הגוון הצהוב, עץ ופרקט שהעניקו לעיצוב את הנגיעות של החמימות שרצינו.
השילוב בין גווונים קרים וחומרים חמים העניק לנו שילוב מנצח.
תהליך התכנון והקונספט - תוכניות והדמיות:
כדי לייצר חמימות, תכננו לרצף את כל הדירה בפרקט לימינציה איכותי בגוןן אלון טבעי, ולהוסיף לחומרים הקרים:
בטון, צבעים אפורים, ומתכת שחורה, גוונים צהובים, ורודים וכחולים יחד עם עץ אלון טבעי.
התאורה תוכננה להיות בקווים רציפים ונקיים כדי להמשיך את המראה המודרני והקווים הוורטיקליים.
והרי התוצאה לפניכם :)
לאחר ההדמיה, יכלנו לצאת לדרך לתוכניות עבודה מפורטות ומדוייקות - לביצוע לאחר קבלת המפתח.
בנוסף, את המטבח כבר תכננו מראש, עוד לפני קבלת המפתח, כדי שיהיה אפשר לבצע את התשתיות הרצויות כבר דרך הקבלן של הבניין.
התוכניות כללו מפרט מדוייק של קיר הטלוויזיה, שהוכנס בו קמין מודרני עם ערובה.
הקיר הזה חצץ בין "חדר העבודה והמשחקים" ובצידו השארנו פינה מזכוכית, כדי לייצר מראה קליל יותר ואשליה שהחלל הזה
הינו כחלק מהחלל הציבורי ולא חדר נפרד לחלוטין.
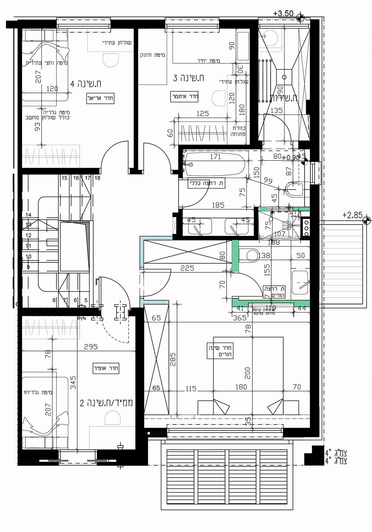
לאחר קבלת המפתח, הלקוחות הגדילו גם כן את חדר ההורים, עם סגירת החלל הכפול שהיה בחלל הסלון
(ח.שינה ההורים החדש נבנה מעל הסלון).
את השינוי הזה תכננו גם כן עם תוכניות מפורדות ומדוייקות.
צילום: אלעד גונן































